Illustration "Kompass" für die Website vom Ferienhaus Altes Elbschifferhaus in Unbesandten

Bordbesichtigung

Unterkunft

weitere Ausstattungsmerkmale & Inklusivleistungen

Ein Haus mit Geschichte

Das Alte Elbschifferhaus war einst ein Vierparteienhaus für Schifferfamilien und einfache Leute, die hier auf engem Raum lebten, Vieh hielten und Obst- wie Gemüsegärten bestellten. Die Elbe war Lebensquelle und ständige Gefahr zugleich – Überschwemmungen gehörten zum Alltag.

Die Jahrhunderte hinterließen Spuren: alte Scherben, die wir beim Umbau fanden, haben wir aufbewahrt. Originale Materialien wurden, wo immer möglich, restauriert und wieder eingesetzt.

In jüngerer Zeit stand das Haus direkt am Grenzzaun der DDR – im Sperrgebiet, später dem Verfall preisgegeben. Nach Jahren des Leerstands kam es 2013 unter Denkmalschutz und wurde zunächst gesichert. Ab 2019 haben wir es gemeinsam mit örtlichen Handwerkern und viel Familieneinsatz Stück für Stück saniert.

Das Elbschifferhaus heute

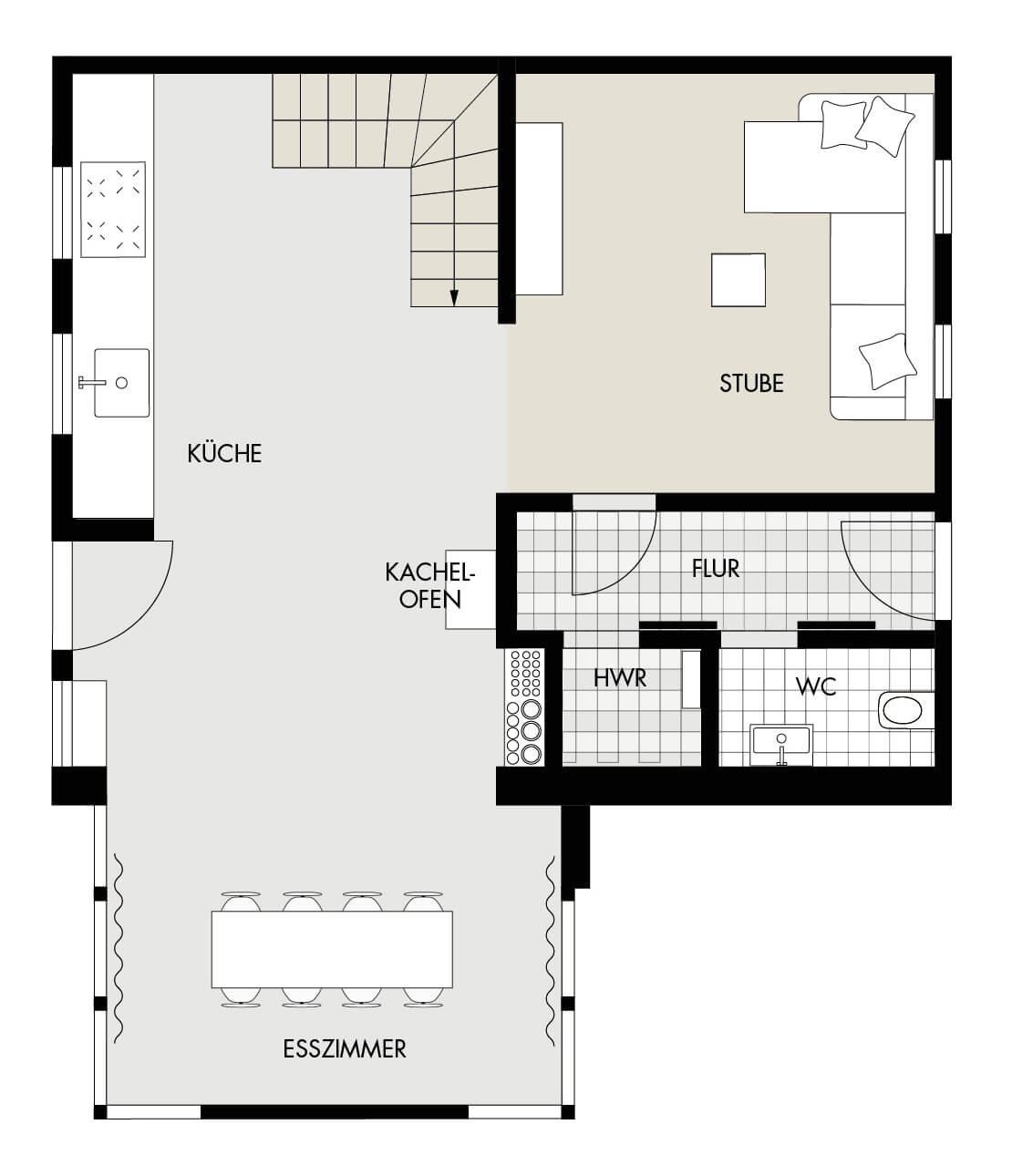
Heute verbinden sich hier Vergangenheit und Gegenwart harmonisch: Die offene Wohnküche von Jan Cray bringt modernes Design in die historischen Mauern. Mit hochwertigen Miele-Geräten und allem, was du zum Kochen brauchst – von scharfen Messern bis zu Olivenöl und Balsamico – wird sie zum Mittelpunkt des Hauses. Während am Herd gekocht wird, fällt der Blick hinaus in den Garten. Gegessen wird in der lichtdurchfluteten Veranda.

Der Wohnbereich lädt zum Entspannen ein: das gemütliche Sofa und ein restaurierter Garderobenschrank, jetzt gefüllt mit Gesellschaftsspielen, schaffen eine warme, wohnliche Atmosphäre. Von hier gelangst du zur Gästetoilette oder hinaus zum Feuerplatz hinterm Haus.

Das Obergeschoss, einst ein Heuboden, beherbergt nun drei schlichte, aber gemütliche Schlafkojen mit Einbaubetten – frisch bezogen, wenn du kommst. Daneben liegt das moderne Duschbad, wo du Handtücher vorfindest. 

Ob im Winter am Kachelofen oder im Sommer unter freiem Himmel: Das Elbschifferhaus bietet dir einen Rückzugsort voller Behaglichkeit – mitten in der weiten Landschaft der Elbtalaue.

Illustration "Anker" für die Website vom Ferienhaus Altes Elbschifferhaus in Unbesandten

Jetzt Anker werfen & Urlaub machen

zu Fuß übern Deich

Café Elbeglück

  • Stimmungsvolles Gartenlokal direkt am Elbdeich

  • Selbst gebackener Kuchen & guter Kaffee

  • Frisch zubereitete Grill- und vegetarische Gerichte

  • Hausbier „Storchenbier“

  • Geöffnet täglich außer dienstags, Küche 11–19:15 Uhr

Café Eisvogel bei Lenzen

  • Lage: im Sportboothafen, direkt am Elberadweg
  • Sonnendeck mit Blick ins Biosphärenreservat
  • Hausgemachter Frozen Joghurt (auch vegan) & Kuchen
  • Storchenbier, Kaffee, kleine Drinks im Liegestuhl
  • Saison: 1. Mai – 3. Oktober, täglich außer dienstags 11–18 Uhr

zu Fuß übern Deich

Hotel & Restaurant Alter Hof

  • Regionale & moderne deutsche Küche im Rhythmus der Jahreszeiten

  • Terrasse im Sommer, Kamin im Winter

  • Ausgesuchte Winzerweine & hausgemachte Getränke

  • Anmeldung bis 18 Uhr erforderlich

Café Diele am Deich

Empfehlung "Café Diele am Deich" in der Nähe vom Ferienhaus Altes Elbschifferhaus in Unbesandten
  • Gemütliches Café mit ganz eigenem Charme
  • Selbstgebackene Kuchen & Kaffeespezialitäten
  • Ein Erlebnis zum Staunen: überall kleine Fundstücke & Geschichten in Regalen und Ecken